Kenmerken Object
- StatusBeschikbaar
- Vraagprijs€ 945.000,- k.k.
- Woonoppervlakte140 m2
- SoortPortiekflat
- Bouwjaar2024
Omschrijving
Stijlvol wonen aan het water, met uitzicht dat elke dag inspireert. Aan de Euryzakade, waar water, lucht en architectuur samenkomen, bevindt zich dit uitzonderlijk fraaie appartement op de 8e verdieping van het moderne complex Euryza Nouveau. Een woning waar rust en een sublieme kwaliteit van interieur en afwerking hand in hand gaan en waar het uitzicht over de Oude Maas en de stad Dordrecht nooit verveelt. Hier woont u op niveau — letterlijk én figuurlijk, comfortabel en verfijnde luxe. Bij binnenkomst ...Plattegronden (3)
LOCATIE
Omschrijving
Stijlvol wonen aan het water, met uitzicht dat elke dag inspireert.
Aan de Euryzakade, waar water, lucht en architectuur samenkomen, bevindt zich dit uitzonderlijk fraaie appartement op de 8e verdieping van het moderne complex Euryza Nouveau. Een woning waar rust en een sublieme kwaliteit van interieur en afwerking hand in hand gaan en waar het uitzicht over de Oude Maas en de stad Dordrecht nooit verveelt. Hier woont u op niveau — letterlijk én figuurlijk, comfortabel en verfijnde luxe.
Bij binnenkomst op de 8e verdieping wordt u direct verwelkomd door een gevoel van ruimte en licht. Met een woonoppervlakte van circa 140 m² is dit een appartement dat royaal aanvoelt, zonder zijn warme en comfortabele karakter te verliezen. De living vormt het kloppend hart van de woning en wordt gedomineerd door grote raampartijen die het uitzicht op indrukwekkende wijze naar binnen halen. Het water, de lucht en de voorbijvarende schepen zorgen voor een dynamisch decor dat elk moment van de dag anders is.
De woonkeuken sluit naadloos aan op het leefgedeelte en is uitgevoerd met een luxe keukenopstelling en hoogwaardige inbouwapparatuur. Dit is een plek waar koken en samenzijn vanzelfsprekend samenkomen. Lange diners, ontspannen avonden en gezellige momenten met familie en vrienden krijgen hier moeiteloos de ruimte. Vanuit de woonkamer heeft u directe toegang tot het riante terras, waar binnen en buiten in elkaar overlopen en waar u op elk moment van de dag kunt genieten van zon, rust en uitzicht. Uitzicht is dan ook een belangrijke waarde. De huidige eigenaar vond dit zo waardevol dat een grote bank een prominente plek kreeg om met volle teugen te genieten van het uitzicht. Heb je zelf een andere kijk op de indeling dan verander je dat uiteraard snel en gemakkelijk.
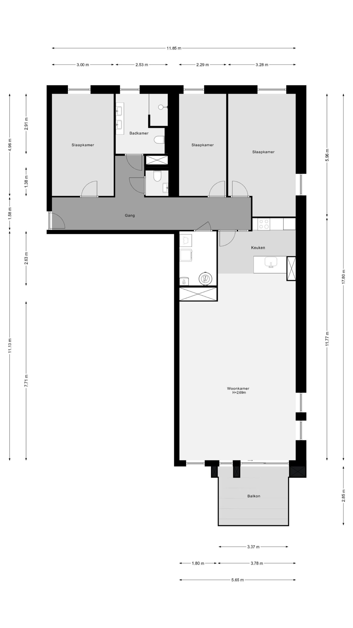
Het appartement beschikt over drie comfortabele slaapkamers, stuk voor stuk licht en praktisch ingedeeld. De hoofdslaapkamer biedt een rustige retreat, terwijl de overige kamers uitstekend geschikt zijn als slaap-, werk-, logeer- of hobbyruimte. De badkamer is modern en stijlvol uitgevoerd en voorzien van een ruime inloopdouche en dubbele wastafel. Daarnaast zijn er een separate toiletruimte en praktische bergruimtes, wat bijdraagt aan het comfortabele woongevoel.
Ook op het gebied van gemak en duurzaamheid is aan alles gedacht. U beschikt over een eigen parkeerplaats in de afgesloten parkeerkelder, een separate berging en een lift die u rechtstreeks naar uw verdieping brengt. Het appartement is uitstekend geïsoleerd en voorzien van vloerverwarming en -koeling, wat samen met het A+++ energielabel zorgt voor energiezuinig en toekomstbestendig wonen.
De ligging aan de Euryzakade is geliefd vanwege de unieke combinatie van rust en bereikbaarheid. U woont hier direct aan het water, met wandel- en fietsmogelijkheden voor de deur, terwijl winkels, horeca en het NS-station zich op korte afstand bevinden. Dankzij de gunstige ligging zijn steden als Rotterdam, Breda en Den Haag snel bereikbaar, wat deze locatie bijzonder aantrekkelijk maakt.
Euryzakade 516 is een woning voor wie waarde hecht aan kwaliteit, comfort en beleving. Een appartement dat niet alleen een plek biedt om te wonen, maar een omgeving creëert om dagelijks van te genieten.
Maatvoering:
Voor een goede indicatie van de maatvoering verwijzen wij graag naar onze bijgaande plattegronden.
Pluspunten op een rij:
- Eigen grond.
- Energielabel A+++ – duurzaamheid in optima forma.
- Vloerverwarming én vloerkoeling.
- Plafondhoogte ca. 2.70 meter.
- Actieve VvE, maandelijkse bijdrage: € 229,96.
- Rolstoelbestendig.
- Eigen overdekte parkeerplaats in een keurig verzorgde parkeerkelder (in de vraagprijs).
- Separate berging in de onderbouw.
- Gezamenlijke fietsenstalling.
- ARTE behang in vrijwel het gehele appartement.
- LUXAFLEX zonwering.
- Z8 wateronthardingsinstallatie.
Stad & Land NVM Makelaars is de makelaar van de verkoper. Wij adviseren u uw eigen NVM makelaar in te schakelen om uw belangen te behartigen bij de aankoop van dit object.
Deze informatie is door ons met de nodige zorgvuldigheid samengesteld. Onzerzijds wordt echter geen enkele aansprakelijkheid aanvaard voor enige onvolledigheid, onjuistheid of anderszins, dan wel de gevolgen daarvan.
Overdracht
- StatusBeschikbaar
- Vraagprijs€ 945.000,- k.k.
Bouwvorm
- Soort objectAppartement
- Soort appartementPortiekflat
- Bouwjaar2024
- BouwvormBestaande bouw
- LiggingenAan water, Aan park, Aan rustige weg, In woonwijk, Vrij uitzicht, Aan vaarwater
Indeling
- Woonoppervlakte140 m2
- Inhoud484 m3
- Aantal kamers4
- Aantal slaapkamers3
- Aantal badkamers1
- Aantal woonlagen1
Energie
- VerwarmingVloerverwarming geheel, Warmtepomp, Warmte terugwininstallatie
- WarmwaterCentrale voorziening
- IsolatieDakisolatie, Muurisolatie, Vloerisolatie, Volledig geïsoleerd, HR glas
- CombiketelNee
Buitenruimte
- TuinGeen tuin
- AchteromNee
Bergruimte
- Schuur / BergingInpandig
- Totaal aantal1
Parkeergelegenheid
- Parkeer faciliteitenParkeergarage, Op eigen terrein
- GarageParkeerkelder, Geen garage
Dak
- Soort dakPlat dak
- Materiaal dakBitumineuze Dakbedekking
Overig
- Permanente bewoningJa
- Onderhoud binnenUitstekend
- Onderhoud buitenUitstekend
- Huidig gebruikWoonruimte
- Huidige bestemmingWoonruimte

