Kenmerken Object
- StatusVerhuurd
- Vraagprijs€ 2.195,- p/m
- Woonoppervlakte84 m2
- SoortBovenwoning
- Bouwjaar1927
Omschrijving
*FOR RENT* Spacious, bright, semi-furnished duplex apartment with a balcony and roof terrace! This beautiful home is located in Hillegersberg, with the Hoogvliet supermarket just around the corner, charming shops on Kleiweg, and the village center of Hillegersberg within walking distance. Public transport (tram, bus, Rotterdam-Noord train station) and major roads are also nearby. Rotterdam city center is easily accessible by bike, as are the Rotte River and the Bergse Plassen lakes. *Energy label A **Score rating: 191 Layout: First floor ...LOCATIE
Omschrijving
*FOR RENT* Spacious, bright, semi-furnished duplex apartment with a balcony and roof terrace!
This beautiful home is located in Hillegersberg, with the Hoogvliet supermarket just around the corner, charming shops on Kleiweg, and the village center of Hillegersberg within walking distance. Public transport (tram, bus, Rotterdam-Noord train station) and major roads are also nearby.
Rotterdam city center is easily accessible by bike, as are the Rotte River and the Bergse Plassen lakes.
*Energy label A
**Score rating: 191
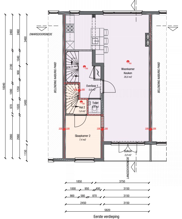
Layout:
First floor
Entrance hall, toilet.
Spacious living room with open-plan kitchen.
The kitchen is fully equipped with an induction cooktop, extractor hood, dishwasher, refrigerator, combination microwave/oven, and sink island.
Balcony at the rear
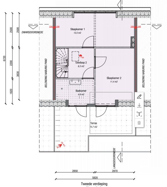
Second floor
3 bedrooms
Bathroom with shower and second toilet
Roof terrace
Rental conditions
- Lease term: minimum one year;
- Lease commencement date: immediately;
- Deposit: €3,000;
- Rent excludes utilities (gas, water, electricity, and TV and internet). These costs are not included in the rent and must be settled directly with your utility provider.
We have compiled this information with due care. However, we accept no liability for any incompleteness, inaccuracy, or otherwise, or for any consequences thereof.
--------------
*TE HUUR* Ruime, lichte, gestoffeerde dubbele bovenwoning met balkon en dakterras!
Deze prachtige woning is gelegen in Hillegersberg, supermarkt Hoogvliet om de hoek, de gezellige winkels aan de Kleiweg en de dorpskern van Hillegersberg op loopafstand en dichtbij openbaar vervoer (tram, bus, NS-station Rotterdam-Noord) en uitvalswegen.
Het centrum van Rotterdam is gemakkelijk aan te fietsen, net zoals de Rotte en de Bergse Plassen.
*Energylabel A
**Puntenwaardering: 191
Indeling:
1e verdieping
Entree, toilet.
Ruime woonkamer met open keuken.
De keuken is voorzien van alle apparatuur zoals een inductie kookplaat, afzuigkap, vaatwasser, koelkast, combi magnetron/oven en spoeleiland.
Balkon aan achterzijde
2e verdieping
3 slaapkamers
Badkamer met douche en tweede toilet
Dakterras
Huurcondities
- huurtermijn: minimaal één jaar;
- huuringang: per direct;
- waarborgsom: €3000,-;
- huurprijs is exclusief nutsvoorziening (gas/water/elektriciteitsverbruik en tv + internet). Deze kosten zijn niet in de huurprijs inbegrepen en dienen rechtstreeks met een nutsleverancier te worden verrekend.
Deze informatie is door ons met de nodige zorgvuldigheid samengesteld. Onzerzijds wordt echter geen enkele aansprakelijkheid aanvaard voor enige onvolledigheid, onjuistheid of anderszins, dan wel de gevolgen daarvan.
Overdracht
- StatusVerhuurd
- Vraagprijs€ 2.195,- p/m
Bouwvorm
- Soort objectAppartement
- Soort appartementBovenwoning
- Bouwjaar1927
- BouwvormBestaande bouw
Indeling
- Woonoppervlakte84 m2
- Inhoud235 m3
- Aantal kamers4
- Aantal slaapkamers3
- Aantal badkamers1
- Aantal woonlagen2
Energie
- CombiketelNee
Buitenruimte
- TuinGeen tuin
- AchteromNee
Parkeergelegenheid
- Parkeer faciliteitenOpenbaar parkeren, Betaald parkeren, Parkeervergunningen
- GarageGeen garage
Overig
- Permanente bewoningJa
- Onderhoud binnenGoed
- Onderhoud buitenGoed
- Huidig gebruikWoonruimte
- Huidige bestemmingWoonruimte

