Kenmerken Object
- StatusBeschikbaar
- Vraagprijs€ 395.000,- k.k.
- Woonoppervlakte120 m2
- SoortBovenwoning
- Bouwjaar1955
Omschrijving
Wij waren verrast… wat een ruimte, (maar liefst 120 m²!), wat een uitzicht en een verrassend leuke indeling, echt anders dan anders. Ook fijn energielabel B en geen bovenburen. Deze riante 5-kamer, dubbele bovenwoning is centraal gelegen ten opzicht van alle voorzieningen, openbaar vervoer, uitvalswegen, het Kralingse Bos en het centrum van Rotterdam. Bekijk de foto’s en plattegronden voor een eerste indruk, dan begrijpt u ons enthousiasme. Eigen grond. Indeling 3e Verdieping: Entree, ruime hal, toilet, praktische inbouwkast. Eenvoudige keuken (2.50 ...Plattegronden (3)
Downloads
Download brochureLOCATIE
Omschrijving
Wij waren verrast… wat een ruimte, (maar liefst 120 m²!), wat een uitzicht en een verrassend leuke indeling, echt anders dan anders. Ook fijn energielabel B en geen bovenburen. Deze riante 5-kamer, dubbele bovenwoning is centraal gelegen ten opzicht van alle voorzieningen, openbaar vervoer, uitvalswegen, het Kralingse Bos en het centrum van Rotterdam.
Bekijk de foto’s en plattegronden voor een eerste indruk, dan begrijpt u ons enthousiasme.
Eigen grond.
Indeling
3e Verdieping:
Entree, ruime hal, toilet, praktische inbouwkast.
Eenvoudige keuken (2.50 x 2.10).
Werk-/slaapkamer (3.50 x 2.10), mogelijkheid tot samenvoegen naar royale woonkeuken.
Heerlijke loftachtige living van (ca. 9.80 x 4.80) met verrassend vrij uitzicht.
Eenvoudige badkamer (1.10 x 1.00) met douche.
Slaapkamer (3.15 x 2.50).
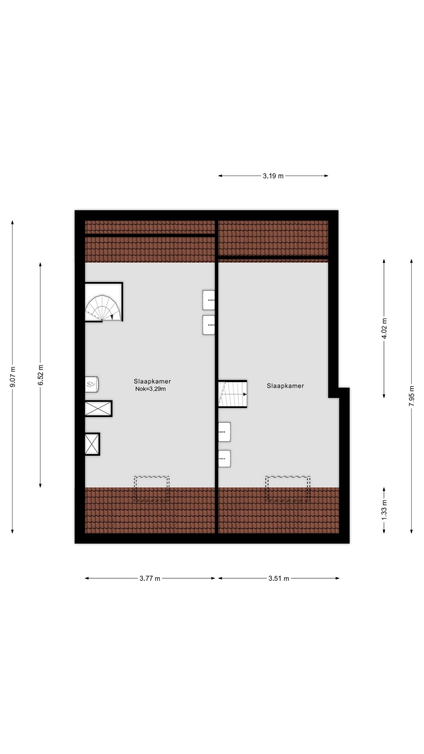
4e Verdieping (zolder):
Nog twee royale slaapkamers (6.90 x 3.75) en (7.95 x 3.50), leuk detail zijn de zichtbare houten balken.
Bijzonderheden:
- Eigen grond.
- Woonoppervlakte: 120 m².
- Inhoud: 405 m³.
- Bouwjaar: 1955.
- Verwarming en warmwater door middel van C.V.-combiketel.
- Energielabel: B.
- Actieve VvE; Bijdrage € 135,- per maand.
- Berging (3 m²) in onderbouw.
- Ouderdomsclausule van toepassing
- Nabij alle stadse voorzieningen, uitvalswegen en het Kralingse Bos.
Stad & Land NVM Makelaars is de makelaar van de verkoper. Wij adviseren u uw eigen NVM makelaar in te schakelen om uw belangen te behartigen bij de aankoop van dit object.
Deze informatie is door ons met de nodige zorgvuldigheid samengesteld. Onzerzijds wordt echter geen enkele aansprakelijkheid aanvaard voor enige onvolledigheid, onjuistheid of anderszins, dan wel de gevolgen daarvan.
Overdracht
- StatusBeschikbaar
- Vraagprijs€ 395.000,- k.k.
Bouwvorm
- Soort objectAppartement
- Soort appartementBovenwoning
- Bouwjaar1955
- BouwvormBestaande bouw
- LiggingenIn woonwijk, Vrij uitzicht
Indeling
- Woonoppervlakte120 m2
- Inhoud405 m3
- Aantal kamers5
- Aantal slaapkamers4
- Aantal badkamers1
- Aantal woonlagen2
Energie
- VerwarmingCV ketel
- WarmwaterCV ketel
- CombiketelJa
Buitenruimte
- TuinGeen tuin
- AchteromNee
Bergruimte
- Schuur / BergingInpandig
- Totaal aantal1
Parkeergelegenheid
- Parkeer faciliteitenOpenbaar parkeren, Betaald parkeren, Parkeervergunningen
- GarageGeen garage
Overig
- Permanente bewoningJa
- Onderhoud binnenGoed
- Onderhoud buitenGoed
- Huidig gebruikWoonruimte
- Huidige bestemmingWoonruimte

